4 Forest Dr.
West Orange, NJ 07052 (MLS #3813184)
Represented Seller

VIP MAILING LIST
Be the FIRST to know
Join our VIP Mailing List and be notified of off-market or exclusive listings before they hit the market.
Join Our VIP List$870,000
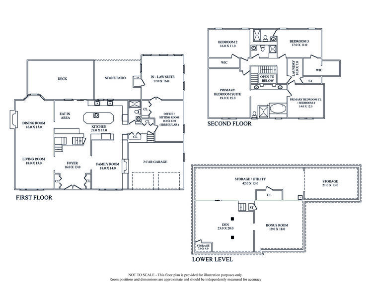
Prepare to be impressed with this stunning 4/5 bedroom, 4 bath meticulously maintained CHC located in the desirable Redwood section of W. Orange. This house sits on over third acre of professionally landscaped gardens for year-round enjoyment. A grand entryway with double doors invites you into the foyer with custom… Read Moreinlay wood floors. The formal DR & LR combination creates an ultimate entertaining flow while the oversized family room with a wood burning fireplace, and built-ins, by the front entrance and the kitchen, makes for a cozy place to relax at the end of the day. The luxurious, large (Kosher) eat-in kitchen with granite counter tops, dual sinks, high end Miele appliances, custom backsplash HUGE center island with loads of storage, will inspire the chef in you. Sliding doors from the breakfast area leads to a beautiful deck & paver patio at the manicured and leveled park-like backyard, offering endless possibilities of summer entertaining! In-law suite with a high ceiling bedrooms, a full bathroom as well as an office on the first floor await you by the 2 car garage entrance. The 2nd floor offers a luxurious master bedroom suite with a full bathroom featuring a jetted tub, rain shower & a dreamy walk-in closet. 2 additional bedrooms, a 2 full bathroom as well as a laundry room complete the 2nd floor. Full finished basement offers a large rec room, storage or home gym, Close to schools, Verona park, NYC bus, Jitney & houses of worship, Newark Airport and Highways. Read Less
Features
Bedrooms
4
Bathrooms
4
Floors
3
Garages
2
Acres
0.35
Square Ft.
3,878
List Price
$850,000
Our Portfolio
Confirm your time
Fill in your details and we will contact you to confirm a time.
Contact Form
Welcome to our open house!
We encourage you to take a few seconds to fill out your information so we can send you exclusive updates for this listing!






































