88 Terrace Ave.
West Orange, NJ 07052 (MLS #3704757)
Represented Buyer & Seller

VIP MAILING LIST
Be the FIRST to know
Join our VIP Mailing List and be notified of off-market or exclusive listings before they hit the market.
Join Our VIP List$738,518
Original List Price:
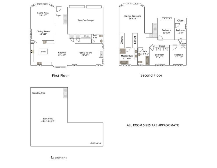
Beautiful & move in ready colonial in the heart of Paddock Farms Redwood. Close proximity to schools, Verona Park, highways, airport, Jitney to NYC, Houses of worship, shopping and restaurants. This home features soaring two story foyer which leads to a bright Living room/ dining room with a large bay… Read Morewindow. Chef's kitchen with granite countertops, stainless steel appliances, open to the family room with a fireplace. Sliding doors lead to a deck overlooking the beautifully manicured backyard. On the 2nd floor 5 specious bedrooms including a sunny master bedroom suite with full bathroom and two walk in closets. Hallway bathroom and a great view from the landing to the front entry. Neutral decor, Two car garage. Full unfinished basement with high ceilings. Just unpack, and welcome home! Read Less
Features
Bedrooms
5
Bathrooms
2.1
Square Ft.
2,678
Floors
3
Garages
2
Acres
0.188
Sold Price
$738,518
Sold Date: 07/13/2021
Our Portfolio
Confirm your time
Fill in your details and we will contact you to confirm a time.
Contact Form
Welcome to our open house!
We encourage you to take a few seconds to fill out your information so we can send you exclusive updates for this listing!
































