25 Seaman Rd.
West Orange, NJ 07052 (MLS #3726620)
Represented Buyer & Seller

VIP MAILING LIST
Be the FIRST to know
Join our VIP Mailing List and be notified of off-market or exclusive listings before they hit the market.
Join Our VIP List$580,000
Original List Price:
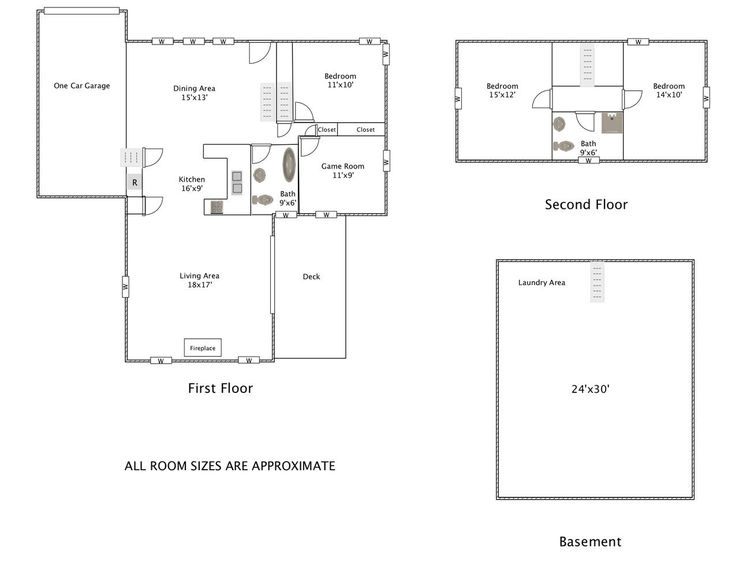
Picture perfect beautiful inside and out!!! Welcome to this gorgeous 4 bedrooms 2 full bath cape cod in desirable Redwood section! Open floor plan offering a gorgeous chef's kitchen with stainless steel appliances, quartz countertop & custom cabinetry. Large dining room and Living room with wood burning fireplace. two full… Read Moreupdated custom bathrooms and 4 large bedrooms. sliding doors from the living room to the new deck and park-like yard surrounded with new vinyl privacy fence. New roof, new deck, new patio, new kitchen and bathrooms, hardwood floors throughout, custom light fixtures all included! Easy commute to NYC with jitney or bus, close to shopping, schools, houses of worship, restaurants and parks. Just unpack and enjoy - WELCOME HOME!!! Read Less
Features
Bedrooms
3
Bathrooms
2
Floors
3
Garages
1
Acres
0.13
Square Ft.
1,543
Sold Price
$615,000
Sold Date: 09/15/2021
Our Portfolio
Confirm your time
Fill in your details and we will contact you to confirm a time.
Contact Form
Welcome to our open house!
We encourage you to take a few seconds to fill out your information so we can send you exclusive updates for this listing!


























